Academic building of Borys Grinchenko Kyiv University
Project name:
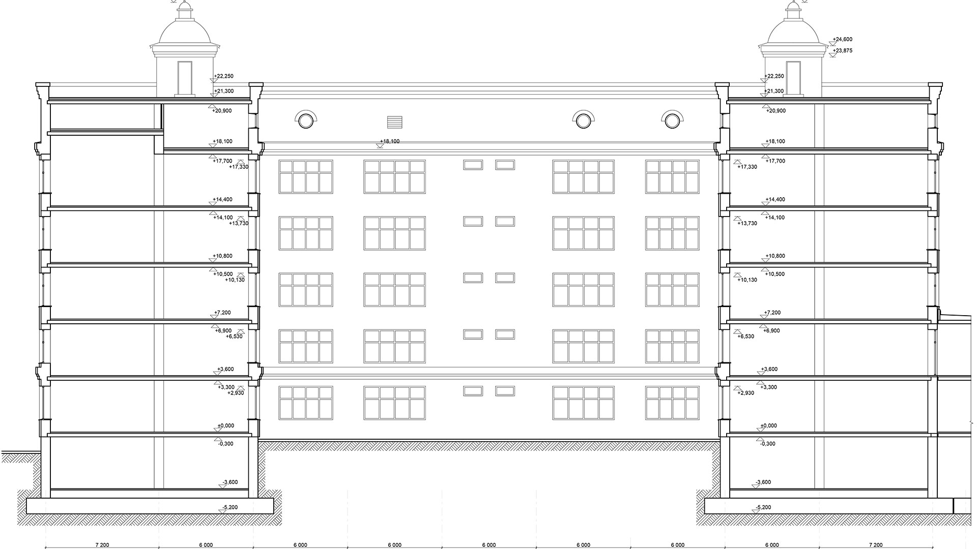
Reconstruction of the academic building of the Borys Hrynchenko Kyiv University at Marshala Tymoshenka street in Kyiv. The building meets the “green construction” standard. The facility’s engineering infrastructure is aimed at conserving energy, water resources, and reducing CO2 emissions. Construction — 2016.
Share :






